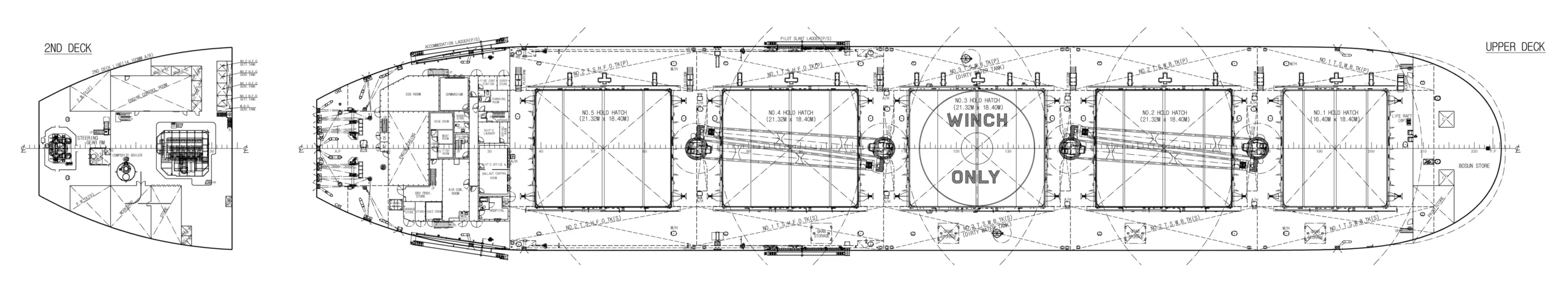
Our Fleet

Diverse Fleet of Owned & Chartered Vessels

Operational Focus

  • Compliance with international safety and environmental standards
  • Sustainable operational practices
  • Efficient voyage performance
  • Safety of crew and cargo
VESSELYARDBUILTDWATTYPE
ERLYNEPT PAL, Indonesia201050,194GRD SID/BC BOXY
CETUS CACHALOTHyundai Vinashin, Vietnam201255,639GRD SID/BC BOXY
DS DEEP VENTURERauma Repola OY1982 (Upgraded 2014)12,923 GRTDP2 Drillship